Szybka budowa domów dużych i małych
Sierra to kompaktowy dom szkieletowy w stylu nowoczesnej stodoły, łączący minimalizm, funkcjonalność i naturalne materiały. Konstrukcja z drewna zapewnia trwałość, energooszczędność i szybki czas budowy.
Na 70 m² powierzchni użytkowej zaplanowano przestronny salon z otwartą kuchnią i jadalnią, dużymi przeszkleniami oraz częścią nocną na poddaszu. Prosty dach dwuspadowy nadaje bryle elegancji i ponadczasowego charakteru.
Sierra doskonale sprawdzi się jako całoroczny dom dla pary lub małej rodziny, ceniących wygodę i nowoczesny design w ekonomicznej formie.
Powierzchnia parter: 40 m²
Powierzchnia użytkowa: 70 m²
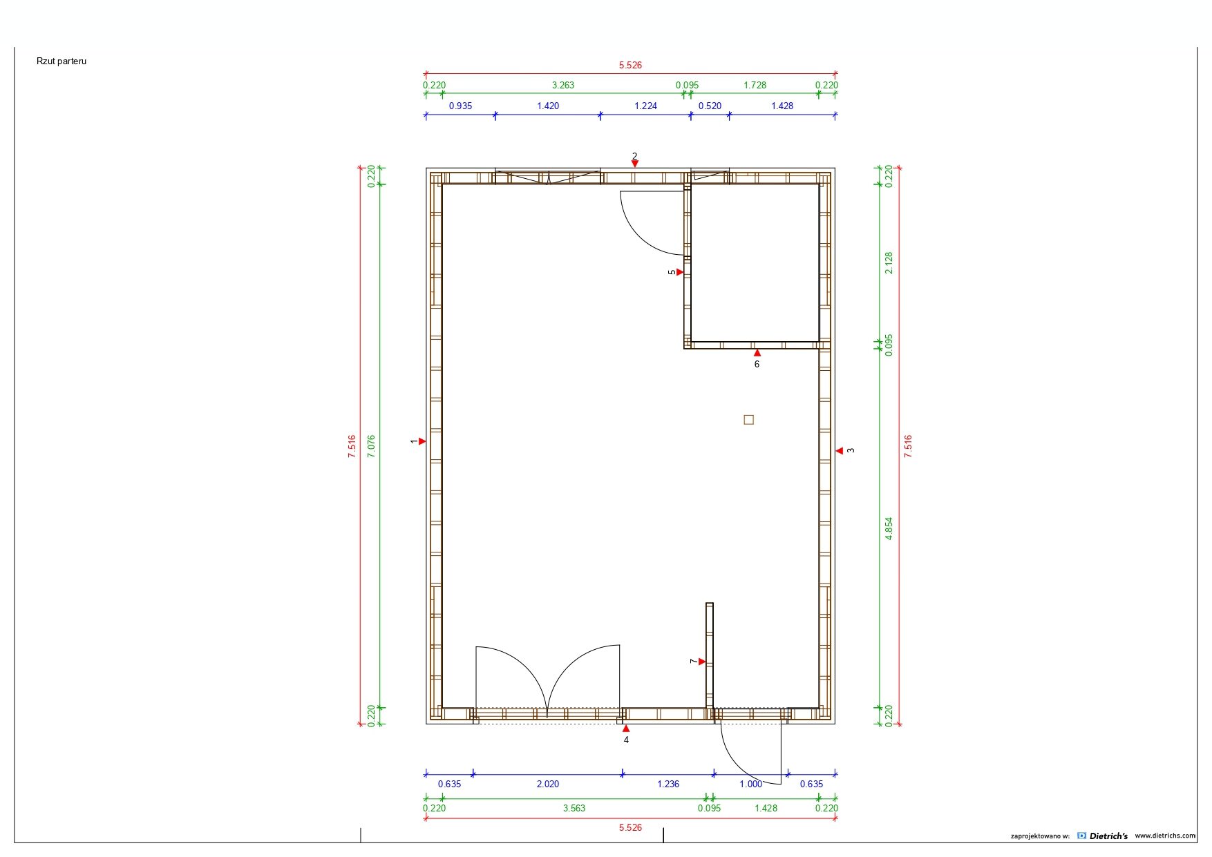
Długość: 5,5 m
Szerokość: 7,5 m
Wysokość: 7 m
Podstawowe cechy i specyfikacja
Dom w stanie szkieletowym
do samodzielnego montażu
Dom szkieletowy Sierra jest dostarczany do zamawiającego w stanie surowym do samodzielnego montażu. Montaż konstrukcji szkieletowej odbywa się w oparciu o gotowe prefabrykaty wraz z przejrzystą instrukcją obsługi.
Istnieje możliwość zmontowania domu u Klienta – zapytaj o cenę montażu.
Oferta dedykowana jest firmom budowlanym oraz osobom posiadającym umiejętność samodzielnego prowadzenia prac budowlanych i wykończeniowych.
Dom w tej w wersji wykonany jest z belek wykonanych z drewna certyfikowanego C24 – świerk skandynawski.
Większość belek użytych w konstrukcji ma grubość 145 mm x 45 mm.
Domek stan szkieletowy
Specyfikacja budynku
- Konstrukcja szkieletowa z drewna certyfikowanego C24 – świerk skandynawski
